百貨商場|落戶蕭山的SKP規劃正式公示!將建高端時尚百貨商場!還有兩家超豪華酒店!

昨天(8月17日),杭州市規劃和自然資源局對蕭政儲出[2021]33號地塊的建設工程方案進行公示。
這一地塊由北京華聯于今年5月競得,并透露將在此建造杭州SKP項目。
相關新聞可點擊:這家高端時尚百貨商場落戶蕭山!將打造高品質核心商圈
百貨商場|落戶蕭山的SKP規劃正式公示!將建高端時尚百貨商場!還有兩家超豪華酒店!


杭州SKP效果圖
方案公示意味著SKP規劃正式亮相,錢塘江南岸即將迎來首座高端商業綜合體。
杭州SKP將建設高端時尚百貨商場,配置高端寫字樓,還要引入兩家“超豪華酒店”。
高端商場搭配
兩幢230米高的摩天樓
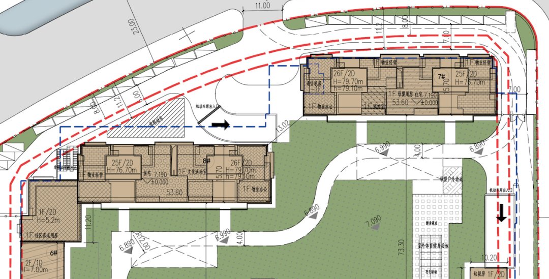
這一地塊,分一期和二期兩部分,備受市民關注的商業部分位于市心北路旁的二期。
將來,自駕從錢塘江北岸經過慶春隧道過江,沿著市心北路行駛,出隧道不久,就能望見SKP了。
二期商業部分用地面積超過6.5萬平方米,總建筑面積67.7萬平方米,由多幢高度超過200米的摩天樓,以及高45米的商業綜合體組成。
其中最高的兩幢樓高度達230米,大型商業裙房與高層點式結合的建筑組群,既塑造門戶地標,也醒目嵌入了錢江南岸天際線。
約17萬平方米的SKP高端時尚百貨商場,加上高端寫字樓和兩家超豪華酒店,打造出錢江世紀城集時尚購物、商務辦公、高端酒店于一體的高品質核心商圈。
百貨商場|落戶蕭山的SKP規劃正式公示!將建高端時尚百貨商場!還有兩家超豪華酒店!


百貨商場|落戶蕭山的SKP規劃正式公示!將建高端時尚百貨商場!還有兩家超豪華酒店!


百貨商場|落戶蕭山的SKP規劃正式公示!將建高端時尚百貨商場!還有兩家超豪華酒店!


百貨商場|落戶蕭山的SKP規劃正式公示!將建高端時尚百貨商場!還有兩家超豪華酒店!


住宅部分限價4.5萬元/平方米
這一地塊的一期部分,主要是住宅,緊鄰盈豐路和鴻寧路。
根據公示方案,一期共有6幢20層以上的住宅組成,總建筑面積11.87萬平方米,容積率3.0,建筑密度22%,綠地率35%。
未來這一地塊精裝住宅新房的銷售上限均價為4.5萬元/平方米,與周邊星翠瀾庭等樓盤持平。
在錢江世紀城內,SKP項目的住宅部分是最靠近高端商業項目的樓盤之一,相比亞運村等樓盤4.7萬元/平方米的限價,這一地塊的限價頗具誘惑力。
這里靠近盈豐路地鐵站以及江南區域的城市主干道市心路,交通極佳,周邊寫字樓林立,也帶來了大量的居住需求。
以后住在這里,下樓穿過馬路就能逛商場、吃飯、休閑娛樂,夜晚在自家的陽臺上,還能欣賞錢江兩岸摩天大樓的燈火輝煌。
百貨商場|落戶蕭山的SKP規劃正式公示!將建高端時尚百貨商場!還有兩家超豪華酒店!


杭州商業格局或面臨劇變
在SKP落地杭州之前,很多杭州人對于這一商業品牌并不了解。
【 百貨商場|落戶蕭山的SKP規劃正式公示!將建高端時尚百貨商場!還有兩家超豪華酒店!】SKP作為北京華聯集團旗下的高端百貨購物中心業態,一直是高端商業的代名詞,是北京華聯集團最具代表性的高端時尚百貨,對國際奢侈品牌具有超強的吸引力和號召力。
在北京,位于國貿商圈的SKP,是備受消費者認可的中高端商業購物中心,Prada(普拉達)、Gucci(古馳)、Fendi(芬迪)等眾多國際知名一線奢侈品牌,均在此設店,且年銷售總額多次登頂中國大陸百貨和購物中心單店銷售額排行榜的榜首。
近年來,SKP也向國內其他大中城市擴展。目前,西安的SKP已經開業,將Hermes(愛馬仕)、TOM FORD(湯姆.福特)等中高端品牌首次帶進西安,整個項目品牌量超過1000個,銷售業績亮眼。
去年6月,位于成都城南的SKP開工建設,計劃引入1000多個知名百貨品牌,一線品牌覆蓋率達98%,涵蓋多個首店品牌。

推薦閱讀