曳引式|家用電梯案例分析:斜屋頂異形面家用電梯如何處理?
隨著家用電梯的安裝需求越來越多,房屋結構的多樣化,家用電梯設計過程中各種異性情況也隨之增加,我們今天就來談一談頂層異形面的房屋結構如何設計家用電梯。

家用別墅電梯
家用電梯案例分析:
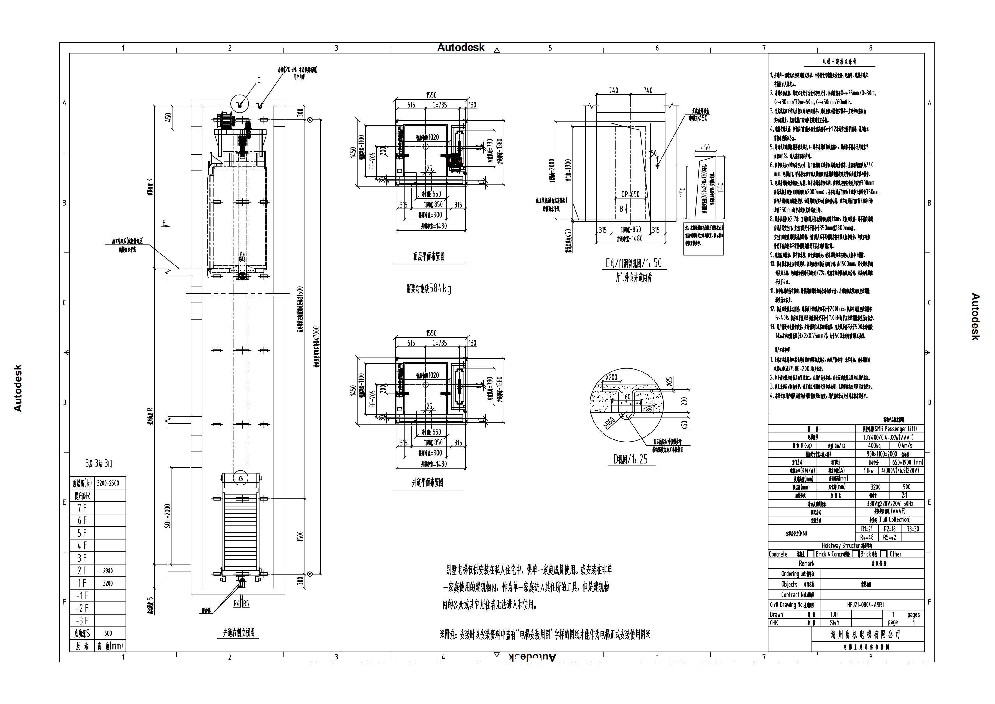
此家用電梯是安裝與樓梯中間,4層4站觀光家用電梯,客戶要求電梯必須使用中分門、驅動方式只能夠接收曳引式龍門架結構、底坑不要太深;
難點解析:曳引式家用電梯對頂層要求相對比較高,后對重頂層高度要求3000mm,側對重頂層要求2800mm,而此項目頂層高度最低點2500mm

頂層井道示意圖
設計思路:我們在設計的時候首要考慮到的就是頂層高度問題,影響主機的放置,那么我們在設計的時候就需要盡量地放置在前端,經過計劃主機位置不超過中心線就不影響電梯的安全使用,再有就是電梯的提拉裝置,因為高度的問題那么提拉裝置就不能方式在頂部,只能選擇做下提拉。

【 曳引式|家用電梯案例分析:斜屋頂異形面家用電梯如何處理?】斜屋頂家用電梯設計方案

推薦閱讀
- |公園式社區,三大方案,森林里、公園里、里院里
- 虹吸式|廁紙扔馬桶真的會堵嗎?馬桶堵了是廁紙的問題,還是馬桶的問題
- 排便|蹲坑和坐便,哪個更健康?比起選擇拉屎的方式,不如注意這個細節
- 熱能|不要羨慕東北有炕了,新式“熱能空氣墻”上市,室內溫暖如春
- 廣東順聯家居匯經營模式,受到廣東省家具協會王克會長等點贊|定制快訊| 廣東省家具協會
- 二居室|88平新中式二居室給人一種悠然淡定清新脫俗的感覺
- 三居室|125平簡單樸素歐式三居室,相互呼應,使空間完整
- 吊燈|人生首套新房,全屋自己設計,做開放式廚房非常滿意,很期待入住
- 空間|142平歐式風三居室,各個居室映襯的柔和淡雅,獨立且相融
- 品牌|這三個意式輕奢家具品牌 給您一個簡中帶奢的新家!
